Menu
Moderna casa de obra nueva con pista de tenis en el Valle del Golf de Nueva Andalucía
Destacado
En Venta
- €7,950,000
Destacado
En Venta
Moderna casa de obra nueva con pista de tenis en el Valle del Golf de Nueva Andalucía
- €7,950,000
Descripción
Presentamos una impresionante villa contemporánea ubicada en la prestigiosa urbanización de La Cerquilla, en el corazón del Valle del Golf de Nueva Andalucía.
Esta exclusiva residencia de 7 dormitorios se asienta sobre una generosa parcela de 2.548 m², ofreciendo una privacidad inigualable y vistas panorámicas a la emblemática montaña de La Concha de Marbella y a la costa mediterránea. Su privilegiada ubicación la sitúa muy cerca de los mejores campos de golf, colegios internacionales, restaurantes de lujo y el vibrante puerto deportivo de Puerto Banús, lo que la convierte en una excepcional inversión y una opción ideal para su estilo de vida.
Descubra amplios interiores cuidadosamente diseñados con texturas naturales y acabados de alta calidad. La villa presume de altos techos, elegante iluminación y una armonía entre el interior y el exterior. Las zonas de estar principales son amplias y acogedoras, decoradas con muebles a medida, materiales orgánicos y elementos decorativos de alta calidad, como arte mural tejido y cerámica artesanal. La planta superior cuenta con un tranquilo pasillo estilo galería con vistas a la planta principal, con acceso directo a los dormitorios con vistas panorámicas y terrazas privadas.
En el corazón de la casa se encuentra una moderna cocina equipada con electrodomésticos de alta gama, elegantes muebles y un amplio comedor acristalado enmarcado por amplios ventanales. La perfecta conexión con los espacios exteriores incluye una impresionante piscina con jacuzzi, tumbonas de estilo balinés y una terraza comedor cubierta con chimenea y barbacoa, perfecta para el entretenimiento de toda la familia. Lo mejor es la impecable cancha de tenis privada al pie del jardín, ideal para que los residentes la usen todo el año debido al excelente clima.
Dirección
Abrir en Google Maps-
Dirección: Valle del Golf, Nueva Andalucía
-
Ciudad: Málaga
-
Provincia / Comunidad: Málaga
-
Código postal: 29660
-
País: Spain
Detalles
Updated on October 21, 2025 at 3:51 pm-
ID de la propiedad HZ52
-
Precio €7,950,000
-
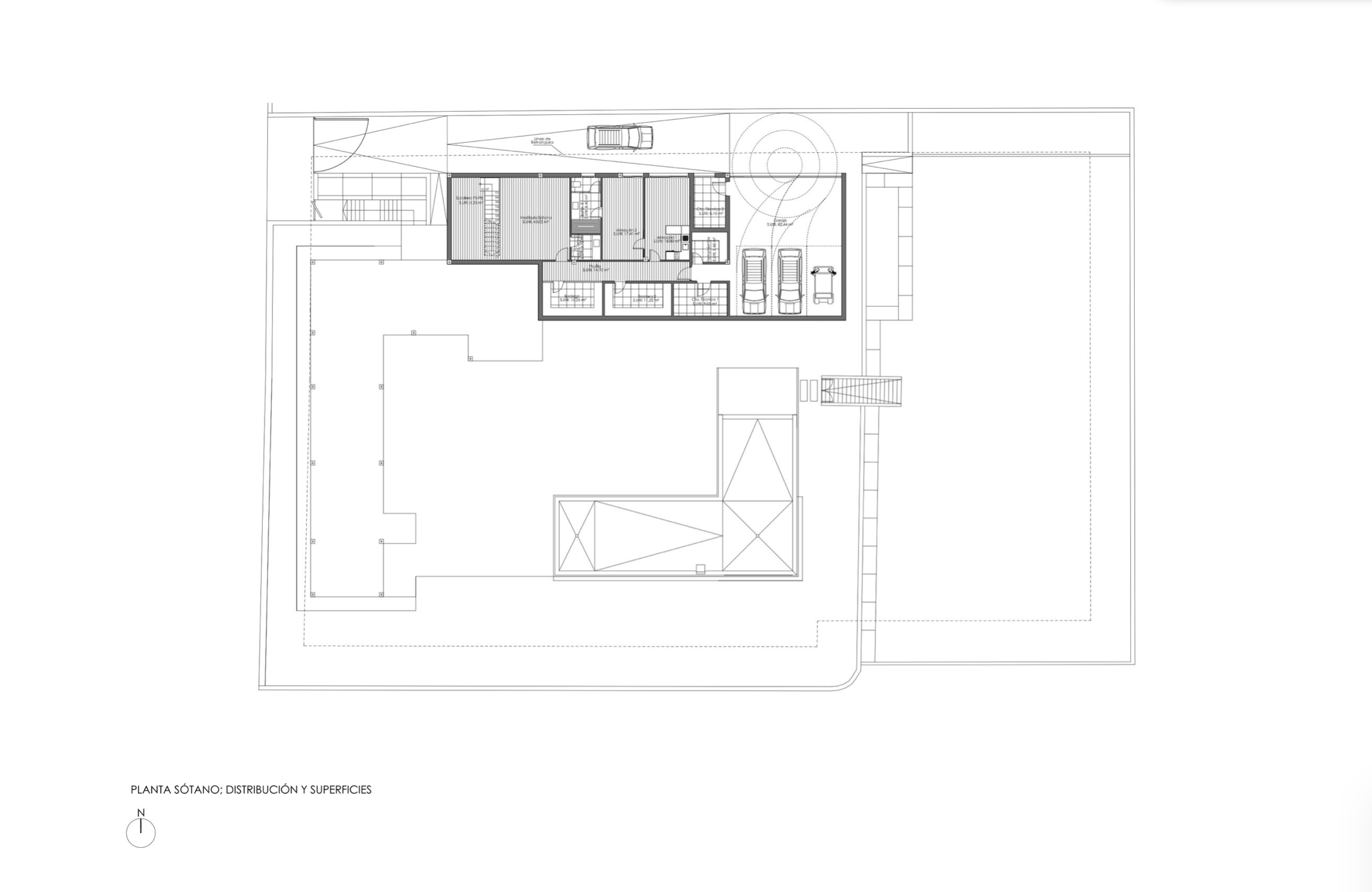
Superficie de la propiedad 676 m²
-
Área del terreno 2548 m²
-
Dormitorios 7
-
Baños 8
-
Tipo de propiedad Villa independiente
-
Estado de la propiedad En Venta
Detalles adicionales
-
Unidades 3 plantas
-
Terrazas 676 m²
-
Plantas 3 plantas (baja + 1ª + sótano/azotea)
-
Estado Excelente / listo para entrar a vivir
-
Cocina Totalmente equipada (electrodomésticos de alta gama)
-
Baños 8 (mármol natural)








